
Thanks for dropping by 684 Mass Ave! I hope you enjoy my site and stay for a while. I'm a building, so I'm not going anywhere, but then again, I might be going fast! Let us know, if you'd like to come visit.

This space has been operating as an Au Bon Pain.
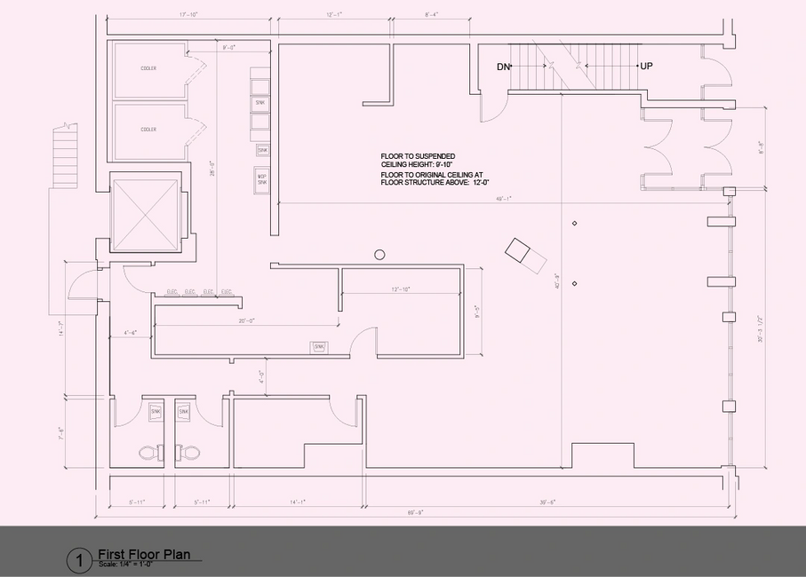
Download this PDF file of the architect's drawing, for scale information.
684 mass ave FIRST FLOOR Plan - Existing Conditions - w-o SF (pdf)
DownloadCopyright © 2019 684 Massachusetts Avenue - All Rights Reserved.
Powered by GoDaddy Website Builder